Dom z ogrodem tuż obok Krakowa –kameralny kompleks

lokalizacja: Skawina, Tyniecka

809 000,00 PLN

9 623,00 PLN

Opis nieruchomości

Zamieszkaj w wyjątkowym miejscu, gdzie spokój i bliskość natury spotykają się z wygodą życia w pobliżu miasta. Inwestycja zlokalizowana jest zaledwie 300 metrów od granicy Krakowa i 2 km od centrum Skawiny. Do serca Krakowa dotrzesz w około 20 minut - zarówno samochodem, jak i szybką kolejką.

Dla kogo?

To idealna propozycja dla młodych rodzin oraz par, które planują przyszłość w przestronnym domu z ogrodem. Szczególnie docenią ją osoby z rejonów Ruczaju i Skotnik, które szukają spokojniejszego miejsca do życia, bez konieczności rezygnowania z bliskości miasta.

Twój nowy dom:


  • Powierzchnia użytkowa: 84 m²

  • Możliwość adaptacji poddasza - dodatkowe 38 m²

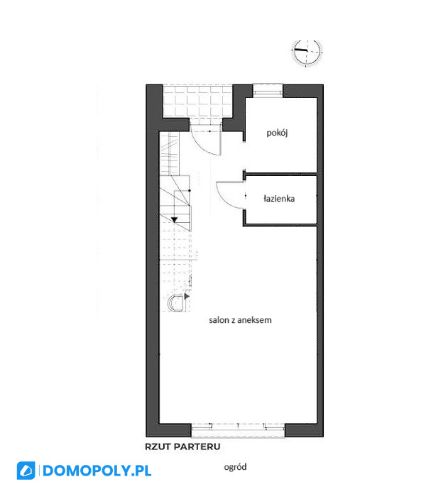
  • Parter: przestronny salon z aneksem kuchennym (33 m²), gabinet/garderoba, łazienka z miejscem na prysznic, kotłownia

  • Piętro: 3 ustawne sypialnie i łazienka z wanną

  • Ogródki od 94 do 300 m² (25-30 m długości), ekspozycja zachodnia z widokiem na Lasy Tynieckie


Atuty techniczne:


  • Ściany z technoamerbloku - akustyka 2× lepsza niż w ceramice

  • Podwójne ściany z dylatacją - komfort i prywatność

  • Ogrzewanie gazowe - średni koszt tylko 200-300 zł miesięcznie

  • Szambo 10 m³ (planowana kanalizacja w ciągu 3 lat)

  • Możliwość zakupu również przez cudzoziemców bez zgody ministerstwa


Lokalizacja dla aktywnych i rodzinnych:


  • W zasięgu kilku minut znajdziesz:

  • szkołę podstawową (1,5 km),

  • kilka przedszkoli i żłobków (1-2 km),

  • sklepy, punkty usługowe i aptekę (do 2 km),

  • przystanki komunikacji miejskiej oraz stację szybkiej kolejki w Skawinie (5 minut autem).


Dla miłośników rekreacji: Lasy Tynieckie, ścieżki spacerowe i rowerowe (Velo Skawa, Velo Wisła), Opactwo Benedyktynów w Tyńcu, bulwary nad Wisłą i Zalew Bagry - idealne miejsca na aktywny wypoczynek.

Ceny i dostępność:


  • Domy: 789-809 tys. zł (w zależności od wielkości ogródka)

  • Budowa w końcowej fazie - odbiór możliwy na przełomie roku / na początku przyszłego roku


To połączenie ciszy, zieleni i komfortu codziennego życia z szybkim dostępem do centrum Krakowa.

Nie zwlekaj - zadzwoń i umów się na prezentację!
Jeśli szukasz domu, w którym połączysz wygodę, przestrzeń i naturę, ta oferta jest właśnie dla Ciebie.

Informacja prawna: Niniejsze ogłoszenie nie stanowi oferty w rozumieniu Kodeksu Cywilnego. Zdjęcia mają charakter poglądowy i przedstawiają wizualizacje inwestycji.

Adres strony www: https:// NULL

Kontakt do opiekuna:

DOMOPOLY.PL

Dawid Kowalczyk
Nieprawidłowy adres E-mail
Mapa

Strona korzysta z plików cookie w celu realizacji usług zgodnie z Polityką prywatności. Możesz określić warunki przechowywania lub dostępu do cookie w Twojej przeglądarce.