Twój dom pod Krakowem – komfortowa szeregówka

lokalizacja: Skawina, Tyniecka

799 000,00 PLN

9 504,00 PLN

Opis nieruchomości

Marzysz o własnym miejscu, w którym po pracy odpoczniesz od miejskiego zgiełku, a jednocześnie w kilka minut znajdziesz się w sercu Krakowa? Ta inwestycja jest dla Ciebie!

Lokalizacja idealna - zaledwie 300 m od granicy Krakowa i 2 km od centrum Skawiny. Dojazd do centrum Krakowa zajmuje tylko 20 minut - autem lub wygodną kolejką.

Kameralne osiedle - tylko 8 domów w zabudowie szeregowej!
To miejsce stworzone z myślą o rodzinach i osobach ceniących prywatność. Cisza, bezpieczeństwo, własny ogród z widokiem na zieleń i Lasy Tynieckie - a jednocześnie wszystkie udogodnienia miasta w zasięgu kilku minut.

Twój nowy dom to:


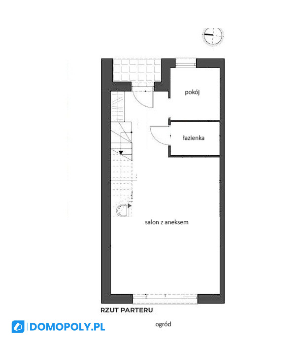
  • 84 m² powierzchni + opcja adaptacji poddasza (kolejne 38 m²!)

  • Parter: przestronny salon z aneksem (33 m²), dodatkowy pokój, łazienka, kotłownia

  • Piętro: 3 ustawne sypialnie + łazienka z wanną

  • Ogród od 94 do 300 m² - idealny na rodzinne spotkania, grilla czy plac zabaw dla dzieci


Największe atuty:


  • Ściany o doskonałej akustyce - więcej prywatności niż w tradycyjnej ceramice

  • Energooszczędne ogrzewanie gazowe - rachunki tylko 200-300 zł/mies.

  • Duże przeszklenia i ekspozycja zachodnia - wnętrza pełne naturalnego światła

  • Brak ograniczeń dla cudzoziemców - zakup bez dodatkowych formalności


Lokalizacja dla Ciebie i Twojej rodziny:


  • Szkoła, przedszkola i żłobki w promieniu 2 km

  • Sklepy, apteka i punkty usługowe - 5 minut autem

  • Szybka kolejka i komunikacja miejska - komfortowy dojazd do Krakowa


Rekreacja: Lasy Tynieckie, ścieżki rowerowe Velo Skawa i Velo Wisła, Opactwo w Tyńcu, bulwary nad Wisłą czy Zalew Bagry - wszystko w zasięgu kilku chwil

Cena: 799 000 zł
Budowa na finiszu - odbiór już na przełomie roku!

To nie jest zwykły dom - to przestrzeń, w której spełnisz marzenia o spokojnym, komfortowym i rodzinnym życiu.
Nie czekaj - takie oferty szybko znikają!

Skontaktuj się już dziś i zarezerwuj swój wymarzony dom zanim zrobi to ktoś inny.

Dawid Kowalczyk - Twój doradca ds. nieruchomości

Adres strony www: https:// NULL

Kontakt do opiekuna:

DOMOPOLY.PL

Dawid Kowalczyk
Nieprawidłowy adres E-mail
Mapa

Strona korzysta z plików cookie w celu realizacji usług zgodnie z Polityką prywatności. Możesz określić warunki przechowywania lub dostępu do cookie w Twojej przeglądarce.