4-pokojowe mieszkanie z balkonem - 73 m², Prądnik Biały | brak PCC i prowizji
Na sprzedaż funkcjonalne mieszkanie o powierzchni 73 m², zlokalizowane na 3. piętrze nowoczesnego budynku na zielonym Prądniku Białym. Nieruchomość doskonale sprawdzi się zarówno jako mieszkanie dla rodziny, jak i jako inwestycja pod wynajem.
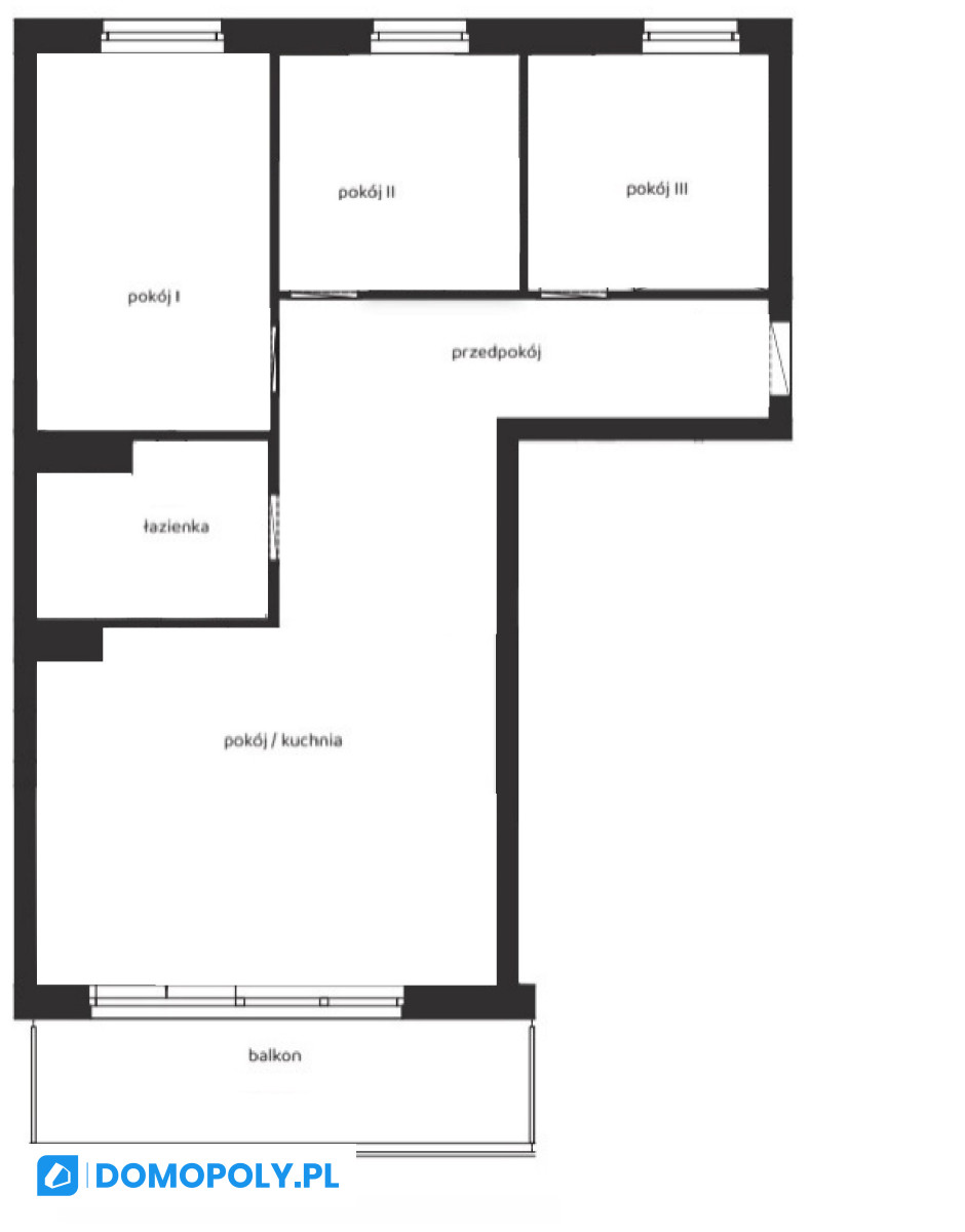
Rozkład pomieszczeń:
Przestronny hol - 15 m²
Salon z aneksem kuchennym - 23 m²
Pokój 1 - 12 m²
Pokój 2 - 8 m²
Pokój 3 - 8 m²
Łazienka - 5 m²
Balkon - 8 m²
Przemyślany układ wnętrz zapewnia funkcjonalność i komfort codziennego życia.
Inwestycja i otoczenie:
Kameralne osiedle z nowoczesną architekturą
Wysoki standard części wspólnych
Zielone otoczenie i niska, estetyczna zabudowa
Lokalizacja - Prądnik Biały, Kraków:
W sąsiedztwie Park Leśny Witkowice, dolina rzeki Prądnik i liczne tereny spacerowe
Świetna dostępność komunikacyjna - ok. 8 minut pieszo do przystanku tramwajowego
Wygodny dojazd do S52 i A4 - 10-12 minut samochodem
W pobliżu: Lidl (6 minut pieszo), szkoły, przedszkola, sklepy i punkty usługowe
Dodatkowo: okolica sprzyja aktywnemu wypoczynkowi - w niedużej odległości znajdują się m.in. Ojcowski Park Narodowy, Dłubniański Park Krajobrazowy oraz Park Krajobrazowy Dolinki Krakowskie.
Warunki zakupu:
Kupujący nie ponosi kosztu podatku PCC (2%)
Brak prowizji po stronie nabywcy
Jeśli szukasz przestronnego mieszkania z dobrym dojazdem do centrum i dostępem do zieleni - ta oferta może być idealna. Zapraszam do kontaktu w celu poznania szczegółów i umówienia spotkania.
Duże przestronne mieszkanie w dobrej cenie.
lokalizacja: Kraków, Henryka Pachońskiego
989 421,00 PLN
13 553,71 PLN
Dane szczegółowe
- Typ transakcji: sprzedaż
- Typ nieruchomości: Mieszkanie
- Lokalizacja: Kraków Prądnik Biały, Henryka Pachońskiego
- Powierzchnia:73 m2
- Liczba pokoi: 4
- Rok budowy: 2026
- Piętro: 2 z 3
- Numer oferty: INF974045
- Cena: 989 421,00 PLN
- Cena za m2: 13 553,71 PLN
Opis nieruchomości
Adres strony www: https:// NULL