Duże przestronne mieszkanie w dobrej cenie.

lokalizacja: Kraków, Henryka Pachońskiego

989 421,00 PLN

13 553,71 PLN

Opis nieruchomości

4-pokojowe mieszkanie z balkonem - 73 m², Prądnik Biały | brak PCC i prowizji

Na sprzedaż funkcjonalne mieszkanie o powierzchni 73 m², zlokalizowane na 3. piętrze nowoczesnego budynku na zielonym Prądniku Białym. Nieruchomość doskonale sprawdzi się zarówno jako mieszkanie dla rodziny, jak i jako inwestycja pod wynajem.

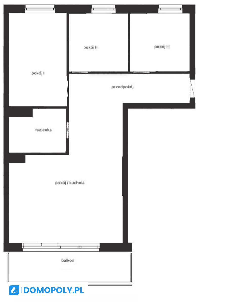
Rozkład pomieszczeń:
Przestronny hol - 15 m²
Salon z aneksem kuchennym - 23 m²
Pokój 1 - 12 m²
Pokój 2 - 8 m²
Pokój 3 - 8 m²
Łazienka - 5 m²
Balkon - 8 m²

Przemyślany układ wnętrz zapewnia funkcjonalność i komfort codziennego życia.

Inwestycja i otoczenie:
Kameralne osiedle z nowoczesną architekturą
Wysoki standard części wspólnych
Zielone otoczenie i niska, estetyczna zabudowa

Lokalizacja - Prądnik Biały, Kraków:
W sąsiedztwie Park Leśny Witkowice, dolina rzeki Prądnik i liczne tereny spacerowe
Świetna dostępność komunikacyjna - ok. 8 minut pieszo do przystanku tramwajowego
Wygodny dojazd do S52 i A4 - 10-12 minut samochodem

W pobliżu: Lidl (6 minut pieszo), szkoły, przedszkola, sklepy i punkty usługowe

Dodatkowo: okolica sprzyja aktywnemu wypoczynkowi - w niedużej odległości znajdują się m.in. Ojcowski Park Narodowy, Dłubniański Park Krajobrazowy oraz Park Krajobrazowy Dolinki Krakowskie.

Warunki zakupu:
Kupujący nie ponosi kosztu podatku PCC (2%)

Brak prowizji po stronie nabywcy

Jeśli szukasz przestronnego mieszkania z dobrym dojazdem do centrum i dostępem do zieleni - ta oferta może być idealna. Zapraszam do kontaktu w celu poznania szczegółów i umówienia spotkania.

Kontakt do opiekuna:

DOMOPOLY.PL

Konrad Krogulski
Nieprawidłowy adres E-mail
Mapa

Strona korzysta z plików cookie w celu realizacji usług zgodnie z Polityką prywatności. Możesz określić warunki przechowywania lub dostępu do cookie w Twojej przeglądarce.