Ogródek 67m2! Kameralna inwestycja! Sprawdz!

lokalizacja: Kraków, Malinowa

732 800,00 PLN

13 905,12 PLN

Opis nieruchomości

Idealne dla życia oraz pod inwestycje - 3 pokojowe mieszkanie z dużym ogródkiem w pobliżu terenów zielonych i komunikacji miejskiej.

ZADZWOŃ I UMÓW SIĘ NA SPOTKANIE!
BRAK PROWIZJI DLA BIURA NIERUCHOMOŚCI.

OPIS MIESZKANIA

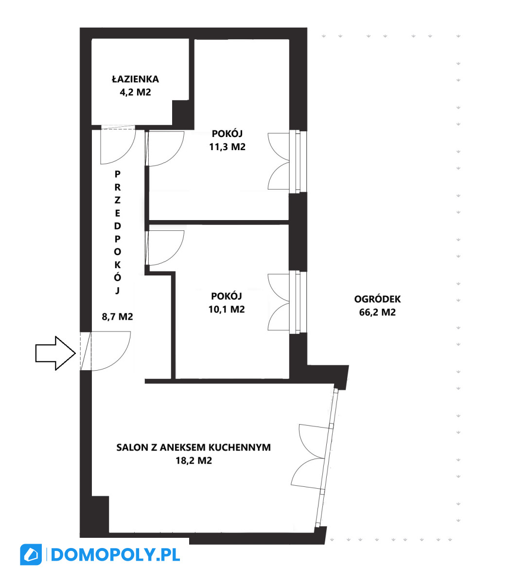
Mieszkanie ma 52,7 m2 oraz składa się z:
- Salonu z aneksem kuchennym - 18,2 m2 - przestrzeń na kuchnię oraz strefy do wypoczynku 
- Pokoju 1 - 11,3 m2
- Pokoju 2 - 10,1 m2

- Korytarzu - 8,7 m2
- Łazienki - 4,2 m2 - możliwość montażu wanny lub prysznica
- Ogródka - 66,2 m2

Mieszkanie jasne i bardzo ustawne.
Jest idealne dla singla, pary, studentów oraz pod wynajem.

LOKALIZACJA KOMUNIKACJA

Odrazy przy inwestycji - przystanek autobusowy
15 min pieszo - przystanek tramwajowy
15 min - dojazd do centrum
Blisko Paczkomat
Szybki dojazd na obwodnicę Krakowa
200 m - sklepy spożywcze, drogerie
W najbliższej odległości - Galeria Bronowice , Makro, Ikea, Obi, Castorama, wszystkie niezbędne punkty handlowo-usługowe, edykacyjne oraz sportowe


DLACZEGO MY?

Jesteśmy Liderem jakości PRO według Otodom!
Pomożemy Ci przebrnąć przez cały proces zakupu.
KLIENT NIE PLACI PROWIZJI!
Pomagamy Ci w wyborze najlepszego mieszkania!
Posiadamy dostęp do dużej bazy ofert nieruchomości na terenie Krakowa i okolic.
NEGOCJUJEMY INDYWIDUALNE RABATY dla Klientów.

FINANSE

Cena mieszkania jest 732 800 PLN

ZADZWOŃ I UMÓW SIĘ NA PREZENTACJĘ!
JEST TO OSTATNIE TAKIE MIESZKANIE W INWESTYCJI!

Zapraszam serdecznie do kontaktu, odbieram również wieczorami oraz w miarę możliwości w weekendy.

Marta Petlovana

*Zdjęcie jest wizualizacją, tak może wyglądać twoje mieszkanie.

Powyższa oferta ma charakter informacyjny i nie stanowi oferty handlowej w rozumieniu art. 66 1 Kodeksu Cywilnego

Kontakt do opiekuna:

DOMOPOLY.PL

Marta Petlovana
Nieprawidłowy adres E-mail
Mapa

Strona korzysta z plików cookie w celu realizacji usług zgodnie z Polityką prywatności. Możesz określić warunki przechowywania lub dostępu do cookie w Twojej przeglądarce.