Ogródek | Wygodna lokalizacja | Prestiż | Sprawdz!

lokalizacja: Kraków, Grzybki

984 900,00 PLN

14 315,41 PLN

Opis nieruchomości

Bardzo ustawne 4 pokojowe mieszkanie na 1 piętrze z ogródkiem w świetnej lokalizacji blisko centrum w stanie deweloperskim.

ZADZWOŃ I UMÓW SIĘ NA SPOTKANIE!

Do oddania w II kwartale 2026 roku.

OPIS MIESZKANIA

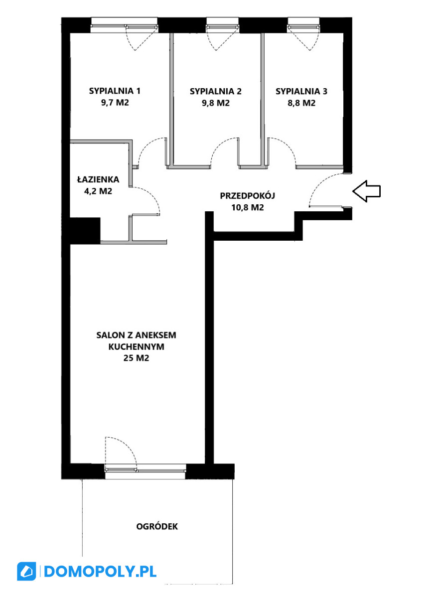
Mieszkanie ma 68,8 m2 i składa się z:
- Przedpokoju - 10,8 m2
- Salonu z aneksem kuchennym - 25 m2 - świetna przestrzeń na kuchnię wraz ze częścią jadalną oraz narużnikiem
- Sypialni 1 - 9,7 m2
- Sypialni 2 - 9,8 m2
- Sypialni 3 - 8,8 m2
- Łazienki - 4,2 m2 - możliwość montażu wanny lub prysznica
- Ogródku

Mieszkanie przestronne jasne i bardzo ustawne.
Stan deweloperski - nowa inwestycja.
Jest idealne dla rodziny z dziecmi, studentów oraz pod wynajem.


LOKALIZACJA KOMUNIKACJA

150 m - paczkomat InPost
2 km - Galeria Bonarka
3,7 km do centrum
5 min. spacerem do przystanku autobusowego
9 min. spacerem do przystanku tramwajowego
dojazd do centrum: 17 min samochodem

DLACZEGO MY?

Jesteśmy Liderem Jakości PRO według Otodom!
Pomożemy Ci przebrnąć przez cały proces zakupu.
Nie płacisz prowizji! Pomagamy Ci w wyborze najlepszego mieszkania!
Posiadamy dostęp do dużej bazy ofert nieruchomości na terenie Krakowa i okolic.
Negocjujemy indywidualne rabaty dla Klientów u Deweloperów.

FINANSE

Cena za mieszkanie to 984 900 PLN

Kupujący nie płaci PCC oraz prowizji dla biura nieruchomości.

ZADZWOŃ I UMÓW SIĘ NA PREZENTACJĘ!
TO NIC NIE KOSZTUJE!

Zapraszam serdecznie do kontaktu, odbieram również wieczorami oraz w miarę możliwości w weekendy.

Marta Petlovana

*Zdjęcie jest wizualizacją, tak może wyglądać Twoje mieszkanie!

Powyższa oferta ma charakter informacyjny i nie stanowi oferty handlowej w rozumieniu art. 66 1 Kodeksu Cywilnego

Adres strony www: https:// NULL

Kontakt do opiekuna:

DOMOPOLY.PL

Marta Petlovana
Nieprawidłowy adres E-mail
Mapa

Strona korzysta z plików cookie w celu realizacji usług zgodnie z Polityką prywatności. Możesz określić warunki przechowywania lub dostępu do cookie w Twojej przeglądarce.